美联社 体育公园 - 汤西安·沃尤(Tongxiang Wuyue Plaza),jiaxing
地点: 汤西安·沃尤(Tongxiang Wuyue Plaza)
关于 乐园 :
汤西安·沃尤(Tongxiang Wuyue Plaza)正在重新定义城市生活方式,为社区带来欢乐和便利。
它具有: 120多个流行时尚品牌
60多种不同的用餐选择
7个儿童教育中心
3个时尚娱乐区
AP 体育公园 -
Wenzhou 口袋屋 和Wenzhou Miaomiao le这是他们, 在Zhejiang的第四个地点 ,提供了令人兴奋的组合: wenzhou 口袋屋和Wenzhou Miaomiao le,提供:trampoline {[t23] s交互式,体育挑战,家庭风险探险探险游戏,
场地定位

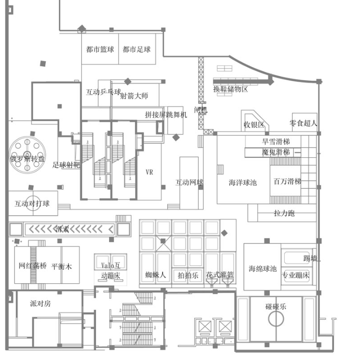
美联社 体育公园 - 终极室内冒险目的地场地规格:
总面积:2,000平方米
天花板高度:6m(用于高能活动的优化)
经营者:口袋屋,中国领先的室内娱乐品牌5个主题区域和24个景点:
1.运动区蹦床扣篮车道(扣篮挑战)和更多的高强度活动
2。数字互动区只是舞蹈互动平台valo技术增强的蹦床城市篮球/足球数字得分
3。冒险区室内干滑雪滑梯,魔鬼的幻灯片,寻求激动的挑战
4。娱乐区秋千桥俄罗斯轮盘旋转平台平衡梁,基于技能的游戏,
5.社会区私人聚会房间团体舞蹈战为庆祝活动而设计
卡德

d esign图片




AP体育公园充满活力的色彩设计和充满活力的氛围
配色方案: 橙色,紫色和粉红色 的动态混合物-能量,激情和年轻活力 的终极色彩.
设计概念:
1.运动启发的美学, 促进积极,健康的生活方式
2. Bold Wall图形和充满活力的贴花 创造身临其境的运动环境
3. Sunny,嬉戏和时尚的氛围- 就像踏上辐射的游乐场轨道
4。“第一印象”目标:让游客觉得他们加入了一支充满活力的运动员,准备奔跑,跳跃和比赛!
建造

30天的精度结构:从开创性到盛大开业
有效的项目执行:通过同步操作在 30天内 完成
平行工作流:设备安装和建筑团队每天协调
严格的时间轴依从性 确保了准时开放
质量保证协议:
A,现场监督 口袋屋工程质量团队
B,行业安全合规性:所有根据标准
C进行验证的安装c,毫米计算检查:每个设备的详细信息详细衡量和重新检查
D,在移交前进行了 严格的最终检查
对卓越的承诺:
双重焦点:毫不妥协的 产品质量 + 来宾安全
主动方法:在施工阶段解决的潜在问题
真实的照片







如果您准备构建新的运动乐园,请随时与 我联系!!!
