Pokiddo体育公园是一个极具吸引力的特许经营项目。它位于蒂安金(Tianjin)比琴区比亨大道(Beichen District)贝希根大道(Beichen Avenue)49号的Yuedong Chenxing Sports Paradise。它的面积为4,000平方米,天花板高度从8到9米不等,为开发各种 运动和娱乐设备的开发提供了足够的空间和高度条件,为创建高质量的 运动和娱乐场所奠定了坚实的基础.
01计划
该场地的计划在确定设计质量的70%方面起着至关重要的作用。在口袋屋上,我们始终遵守这样一个概念,即“没有操作,没有设计。
首先,我们考虑了项目现场的周围环境。然后,我们分析站点本身的空间属性。天津口袋屋体育公园的位置是一栋古老的工厂建筑。该空间提供了常规的尺寸,其高度完全满足了全面运动场所的地面高度要求。但是,一个缺点是站点内存在许多列和跨牙套。因此,解决和缓解这些柱和跨牙套的影响成为我们在设计阶段的关注和挑战。通过仔细考虑这些因素,我们旨在创建一个功能性和视觉上吸引人的场所,不仅满足运营需求,而且还为游客提供了愉快的体验。

在与投资者进行了彻底的沟通以清楚地定义了地点目标客户群和娱乐的定位乐园之后,我们的设计团队直接进行了现场讨论和协作创建。考虑到诸如创收,成本预算和客户体验之类的因素,我们精心划分了功能区域,建立的主要和次要循环路线以及精心选择的设备。类似地,我们成功地解决了场地内许多列的挑战。这种全面的方法确保了设计的各个方面都经过深思熟虑,从而实现了精心计划,有效的布局,从而最大程度地提高了运营效率和访客满意度。

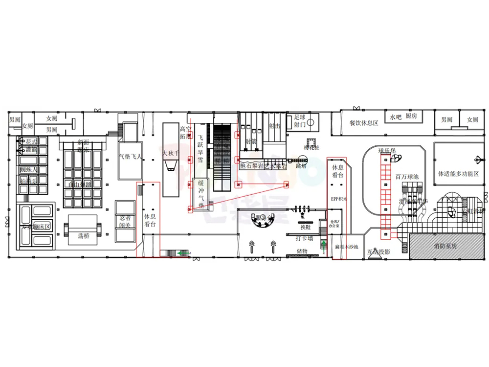
我们精心将场地分为各个功能区域,包括全面的服务区域,充满活力的蹦床区域,一个绳索路线冒险区,攀岩区,超级滑动空间,交互式运动空间以及亲子狂欢节(Carl-Carnival Space)(组成一个体育界城堡,滑梯,滑动,一个巨大的球,一个巨大的球,一个建筑块王国和珍宝王国和珍藏界)。此外,我们包括一个多功能活动区域以及支持餐饮和休息区。在解决场地内众多列的问题时,我们的创新设计不仅可以最大程度地减少其视觉影响,而且还巧妙地利用了它们来降低建筑成本。这种战略方法确保了场地的每个方面都经过深思熟虑,有效地执行,从而实现了均衡的布局,从而最大程度地提高了运营效率和访客的满意度。
休息区: 我们利用场地上的四个最密集的柱子分别建造两个休息架,一个在东部,一个在西方。这不仅节省了构建二楼的成本,而且使东部和西部的人们能够欣赏整个场地中的每个项目,从而呈现出极好的视觉效果。
城堡走廊: 通过使用场地中的柱子,我们设计了一个既有游戏和观看功能的走廊。它连接到竞技场城堡,在场地内创建了一个主要的亮点。

攀爬组合:柱子之间嵌入了抱石和艺术攀岩。总体而言,这削弱了柱子的视觉影响,并具有非常宏伟和令人印象深刻的外观。

绳索课程: 课程平台和障碍模块直接固定在场地的列上。
设计 室内娱乐的 一个非常 重要的原则乐园 是入口处的项目必须能够 引起客户的注意。绳索路线,大滑梯和攀岩的结合无疑满足了这一要求。
02设计样式




Tianjin 口袋屋特许商店采用了一种以深紫色和明亮蓝色为主的配色方案,并以充满活力的橙色和黄色的色调互补。这种设计选择创造了一种既动态又引人入胜的气氛。深紫色,让人联想到夜空中遥远的恒星,为空间增添了神秘和深度的感觉,引起了一种无限的想象和探索感。明亮的蓝色,象征着晴朗的天空和广阔的海洋,为场地带来了新鲜感和活力,使整体氛围更加生动和分层。橙色和黄色的添加进一步增强了活跃的气氛,从而充满了温暖和能量。这些颜色不仅突出了关键领域,还为访问者创造了视觉吸引人的环境。
总体而言,这种颜色结合成功地将场地转变为客户可以同时经历宁静和兴奋的地方,留下持久的印象。
03渲染

对于天津口袋屋公园,除了我们的团队进行的设备计划外,整个装饰环境设计和施工图还由我们的品牌团队精心计划和设计。在环境设计方面,我们的哲学集中在强调装饰而不是重型装修上,旨在通过颜色和材料形状营造氛围。
我们采用的形状简单而有效,促进了迅速的施工过程。所选的材料很简单,确保成本保持易于管理,同时仍取得了视觉上吸引人的结果。这种方法不仅简化了施工过程,而且还可以提高灵活性,从而创建一个充满活力和诱人的空间,与品牌的愿景和客户期望保持一致。
04工程结构
从口袋屋施工团队的进入到成功完成和交付项目,总共计划和执行了45天。在此期间,设备安装团队,工程施工团队和环境装饰团队同时或在交错的时间表中工作,从而确保根据日常任务计划有效进度。

这项协作努力有助于确保该项目按时开放而不会损害质量或安全标准。 口袋屋工程质量团队在整个过程中一直保持不断的监督,严格遵守行业安全法规,同时对与设备安装相关的每个细节进行了彻底检查和验证。此外,该项目的交付和接受受到了由首席经验官(亲切地称为“ Bao,”的严格检查,他们亲自监督了工作的各个方面。这些严格的措施的实施是唯一的目的是维护卓越产品,并确保娱乐乐园中的访客为环境提供安全的环境。

05现场真实场景
让我们一起看看实际的安装结果!



如果您对我们公司的产品或项目感兴趣,请随时直接与我联系。